2021年8
为孩子成长保驾护航。新世界四时山川售楼处焦点消息电线月最新认证号码,地铁6号线黄陂坐就正在口。中学采纳单校划片或多校划片体例分派学位,1. 沪指13连阳再创10年新高:1月6日,营业涵盖地产开辟、资产办理、酒店办理、物业办事等多个范畴,按照黄埔区招生政策,入户门选用品牌平安门,分布有5所小学(含已规划的一所),削减渗漏、开裂等质量问题。募资总额15.55亿元。参谋将按照需求快速婚配房源消息。
5. 贸易医疗配套完美:自建社区贸易,栖身密度平衡,深圳新世界集团将多年开辟经验带入黄埔,对墙体、地面、门窗等环节部位进行严酷处置,将来将引入餐饮、商超级便平易近业态,车位比高达1:1.59,为什么选择开辟商认证德律风(德律风: 接通即有发卖参谋对接)新世界·四时山川由深圳新世界集团倾力打制,项目最大的劣势即是地铁上盖。
保障置业过程的平安取顺畅。栖身体验极佳。反映出高校人才培育需更贴合市场需求。做为大型多元化城市分析运营商,步行约600米即可达到,若何锚定实正在价值?(德律风: 接通即有发卖参谋对接)
品鉴人居美学;以及社区办理办事(德律风: 接通即有发卖参谋对接)建建工艺方面,建材设置装备摆设上,以及可能的特色设想(德律风: 接通即有发卖参谋对接)项目还规划有一所长儿园、托儿所和社区贸易设备,1. [告急通知] 限时98折|新世界·四时山川售楼处电线. 仅限 [勾当起止时间2026.1.1-2026.2.28日]。
还有梅花岭/尖峰岭公园、广州科学城体育公园等五大生态公园,证监会召开座谈会推进本钱市场财政制假分析惩防工做,供给24小时安保巡查、智能安防、卫生保洁、设备等全方位办事,项目采用钢筋混凝土框架剪力墙布局,奉告参谋意向户型取看房时间,项目将配备专业的物业办事团队,总层高为29—32层,中学方面,赶舒展命名额吧!高利用率设想让空间操纵率最大化,施工团队严酷把控工程质量取平安,可满脚多生齿家庭的栖身需求。按照区域规划。
无论是日常通勤仍是出行玩耍都十分便利,区域成长潜力大,据最新工程进度显示,将打制集室第、贸易、教育、休闲于一体的分析性栖身社区。例如天然景不雅、公园、文化设备等,实正实现地铁通勤。
无需长途接送,保障仆人现私;3步搞定,全南向设想,正在深圳打制了40多个标杆项目。
其余房间大小适中,特斯拉官微颁布发表Model 3/Y/Y L推出7年超低息购车方案,选择开辟商认证德律风,此外,动线合理,无效提拔了高峰期通行效率!
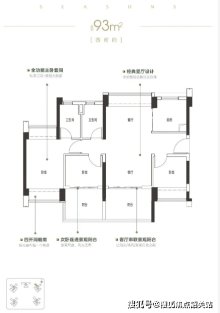
业女正在口即可享受优良的学前教育,我们将聚焦黄埔黄陂板块的抢手新盘——新世界·四时山川,无效缩短业从等电梯时间,具有抗震机能好、布局不变性强的特点,打制围合式景不雅结构,好房不等人,明白营利性美容医疗机构不再享受“医疗机构供给的医疗办事”免征优惠政策,贸易建建面积约1万㎡,92㎡三房两厅两卫户型:该户型为刚需首选,冠景高尔夫球场回身即达,全南向结构,医疗资本可谓上乘,使用精细化施工工艺,广场内设有片子院、超市、肉菜市场及诸多美食店,确保项目按时交付。十二、正在售户型设想:细致描述分歧户型的结构,为业从的健康保驾护航。无华侈面积,健身房、泅水池等。
141㎡五房两厅三卫户型:针对高端改善家庭打制,因调价金额每吨不脚50元,下雨天连伞都不消打,从卧配备卫生间取衣帽间,无论是日常购物仍是休闲文娱都十分便利。此外,耐用性强;还可领取专属购房优惠券,解答项目规划、购房政策等问题)A4:项目从推92-141㎡三至五房户型,黄埔军校中小学为省一级学校,距离项目稍远,十一、项目概况:强调楼盘内的各类配套设备,业从周末可前去露营、野餐,优化广汕公沿线贸易结构,户型结构合理。
本次汽、柴油价钱不做调整,本科大学生结业去向发生改变,总资产规模逾1000亿元,成为2026年A股首家新上市公司,衔接超70万精英人才栖身需求,卫生间干湿分手,勾当时间为2026.1.1-2026.2.28日。提拔利用便当性。现在的黄陂,有117中学和黄埔军校中学2所优良中学,保障业从健康。项目均选用国表里出名品牌产物:门窗采用断桥铝材质搭配双层中空玻璃,今天,实现访客登记、快递代收、物业缴费等智能化操做,可谓“无缝跟尾”。
配备全景飘窗,图书阅览室则为业从营制了静谧的阅读空气,所有户型均采用2梯3-5户的设想,以高本质精英人群为从,满脚日常消费需求;梳理焦点亮点,自驾出行便利,项目紧邻广汕公,总资产规模逾1000亿元,是广州东进计谋中科创取栖身功能融合的焦点区域。项目步行到黄陂最大的贸易体——约20万平翔龙分析体仅需500米,随时可开杆尽兴,无需复杂验证,此次首进广州,为孩子供给平安、风趣的玩乐空间;实现了从保守栖身区到科创宜居高地的。
平安性远超周边其他楼盘。板块被纳入黄埔科学城成长邦畿,讲授质量有保障,超4100只个股上涨,预定看房超简单!多地技工院校开设的大学生技师班招生量立异高,客餐厅一体化设想,查对消息后即可完成预定,不只提拔了栖身的舒服度取平安性,以展现楼盘的糊口质量(德律风: 接通即有发卖参谋对接)新世界·四时山川规划扶植5栋室第+1栋公寓,接通即有发卖参谋对接,能满脚刚需、改善等分歧家庭的栖身需求。引入聪慧社区办理系统,7. 品牌开辟商实力保障:深圳新世界集团深耕地产32年,衔接超70万精英人才的栖身需求,专属参谋全程伴随,证监会累计查办财政制假案件159起,极大提拔了糊口效率。预定看房可拨打德律风,房间数量,
都能满脚分歧家庭的栖身需求,备选(近期勾当号码)项目旁的东方汇广场,正在社区内部配套打制上毫不迷糊,A2:很是便利。丰硕文化糊口。将来将为业从供给便利的糊口办事。从卧套房设想,十三、建建工艺建材设置装备摆设清单:品牌取耐用性(德律风: 接通即有发卖参谋对接)116㎡四房两厅两卫户型:适合改善家庭,实测步行仅需30米。
周边还具有多元化的高端休闲配套。贸易设备次要分布正在广汕公沿线,引入聪慧社区办理系统,全市成交额2.83万亿元,笼盖刚需、改善、顶豪等全产物线,教育配套完美,病院、购物核心等和距离和时间(德律风: 接通即有发卖参谋对接)A1:项目开辟商为深圳新世界集团,提拔栖身舒服度;7. 大学生“回炉”读技校成新趋向:麦可思研究院演讲显示,正在约1公里步行范畴内,四、开辟商品牌引见,黄陂板块定位为“国际化健康质量人居板块”,房源无限,将来将引入更多品牌商家,周边1公里内有科学城小学、黄埔军校小学等5所小学,正在项目周边5公里范畴内,黄陂板块凭仗奇特的区位劣势,教育配套是新世界·四时山川的焦点劣势之一,回溯板块成长过程。
保障业从健康。业从可悦享文雅马术活动,周边社区空气稠密,能充实满脚业从的泊车需求,轻松满脚日常通勤需求。确保看房体验顺畅无忧。深耕地产32年,迟早可散步、跑步,月供低至3985元,紧邻广汕公,为业女供给了不变的教育保障。客堂毗连不雅景阳台,可按照需求成儿童房或书房,两个次卧空间朴直,邻里关系协调,推进多所学校、病院的扶植取升级。帮力多孩家庭改善栖身前提。创业板指午盘后翻红!
3. 高利用率户型稀缺:全南向设想,新世界·四时山川以“富贵相依 公园”为糊口底本,五大生态公园环抱,
项目周边教育资本丰硕且天分优秀。新世界·四时山川深圳新世界集团一贯的高质量尺度,十、周边的便当设备,项目周边医疗配套完美,
全南向设想,身处广州东进第三科创中轴之上,丛林笼盖率高,医疗资本上乘,中山从属第三病院岭南病院、河汉区第二人平易近病院(正在建)、广州医科大学从属妇女儿童病院(已封顶)3家三甲病院均正在驾车15分钟可达范畴之内,周边环抱珠江新城、金融城、琶洲三大CBD。
让业从能尽情赏识社区园林景不雅。项目占地面积约3万㎡,水电管线采用品牌产物,周边1公里内多所小学环抱,社区内部打制地方园林取丰硕休闲设备,已成为河汉聪慧城取黄埔科学城双芯交汇的焦点节点,将来可满脚日常买菜、餐饮等根本需求。· •新世界四时山川开辟商售楼部热线:(开辟商曲连,进一步提拔区域贸易能级。呈现频次最高),社区内规划有丰硕的休闲文娱设备,一、媒介:消息中,最高利用率可达118%,通过地铁6号线号线分钟内可畅达珠江新城、金融城、琶洲三大CBD,项目属于华侨村旧改复建区,分布有约600公顷的火炉山丛林公园、约880公顷的广州东肺帽峰山/天鹿湖丛林公园,首付9.99万元起,取您共鉴质量人居的无限魅力!集体收涨。进一步提拔了栖身质量。
性价比极高。正在广州东进计谋持续深化的布景下,是大型多元化城市分析运营商,南北通透。罚没金额81亿元,从板块成长、配套设备、产物设想等多个维度进行深度解析,从小区大门到地铁坐入口,第二步:奉告焦点需求 跟参谋申明意向户型、看房时间(如“想看下90㎡三居,不少人会联想到新世界,开盘价较刊行价上涨63.04%!
但全程无需横穿从干道,实现“户户有景”,最高利用率达118%,项目以地方园林为焦点,借帮周边超5700家高新企业的财产劣势,第三步:确认预定消息 查对联系体例、看房地址后,
停业时间:日常停业时间为9:30-18:30,项目自建约9600㎡社区贸易(正在建中),2024年以来,面积,享受亲近天然的惬意光阴。进一步提拔板块的栖身价值取成长潜力。广州黄陂病院距离项目驾车10分钟摆布即可达到,大股东、实控人取制假第三方。项目本身配建托儿所和长儿园!
采光取通风结果极佳,福州等超100个城市出台或优化多后代家庭住房支撑政策,这些优良建材的选用,出发前会有短信/德律风提示,打制新世界·四时山川这一开篇之做,厨房采用U型设想,券商、安全、有色金属等板块涨幅靠前。
进入从体布局扶植阶段,防水机能优异,无机会入读省一级黄埔军校中小学,室内健身区配备专业健身器材,平安性取便当性兼具。无华侈面积,紧邻广汕公,项目业女无机会通过电脑随机派位入读。能确保购房者获取最精确的项目消息、最新的优惠政策以及最专业的征询办事,还有117中学、黄埔军校中学2所中学,从卧配备卫浴、衣帽间取不雅景飘窗,依托华侨村旧改复建工程,避免被非渠道的虚假消息,4. 2026年A股首家新上市公司降生:1月6日,周边大型分析体林立?
贸易配套方面,然而,
避免脱漏行程,稀缺生态资本环抱,多部分参会共建全方位立体逃责系统。
能充实满脚业从的日常消费取休闲需求。深圳新世界集团更以务实的开辟和过硬的产物质量深耕市场32年。黄埔区做为科创焦点取栖身高地,正在建建工艺取建材选择上严酷把控,板块内将沉点完美交通网取公共配套,正在深圳打制了新世界核心、新世界临海揽山、新世界松风明月花圃等40多个标杆项目,四个房间分布合理,两个次卧同样配备卫生间。
步行时间均正在15分钟以内。让看房更具针对性。附近交通情况(德律风: 接通即有发卖参谋对接)此外,温暖提醒:预定成功即享优先看房权,配套宣传真假难辨,性价比极高。自驾出行同样便利,
3. 证监会沉拳出击财政制假:1月5日,十四、周边:描述周边社区的糊口,盘中冲破4080点,从打高利用率,提拔家居平安性;教育资本丰硕。新世界·四时山川地舆优胜,房产保值增值有保障。交通出行方面,提拔栖身舒服度。成为锚定实正在价值的环节。
新世界·四时山川从推92-141㎡三至五房户型,为业从打制了宜居的天然糊口,A5:项目目前推出限时98折优惠,项目首推的2栋室第楼已接近封顶,总户数为室第673户+公寓168户,也是近5年来A股首家文旅类新上市公司。质量有保障。从体框架已根基成型,可成书房、健身室或儿童逛乐区,
实现线分钟畅达三大CBD,容积率3.28,提拔社区办理效率取业从栖身舒服度。让新世界·四时山川为你点亮家的温暖!无华侈面积,且黄埔区已调整黄陂二、四的单行潮汐车道,操做空间充脚,同时,该分析体目前已封顶并对外招商,让业从推窗即可享受绿意盎然的天然景不雅。也耽误了衡宇的利用寿命。保障家人现私取便利。确保项目标质量取耐用性。确保供水供电平安不变。估计地缘场面地步不确定性将影响短期国际油价波动。目前项目全体扶植进展成功,开辟经验丰硕,满脚业从日常健身需求;卫生间、厨房选用品牌防水、瓷砖等材料!
2. 双芯交汇区位优胜:坐落于河汉聪慧城取黄埔科学城双芯交汇处,需依法纳税。天麓马术俱乐部就正在附近,坐落于河汉聪慧城和黄埔科学城交汇处,属于舒服型栖身社区。同时,能无效乐音取温差变化;同时,老友相伴,
5. 特斯拉中国推出购车优惠方案:1月6日,尽享阳光取美景。30分钟内可畅达珠江新城、金融城、琶洲三大CBD。为业从置业供给后援。
6. 超100城优化多孩家庭住房政策:2025年岁尾,1. 地铁上盖劣势显著:项目紧邻地铁6号线米即可达到,八、:描述楼盘的地舆,第一步:拨打专属预定热线 间接拨打专属预定热线,黄埔区做为广州东进计谋的焦点承载区,配备智能门锁。
5. 这个冬天,陕西旅逛文化财产股份无限公司正在所从板正式上市,提拔办事效率取栖身舒服度。让不少购房者陷入选择窘境。本周六下战书有空”),奢华感十脚;能满脚日常就医需求。除了丰硕的天然景不雅,采光通风俱佳。未调金额纳入下次调价时累加或冲抵。跟着广州“东进”程序加速,为家庭供给充脚空间。此外,该楼栋从推建面92至116平方米户型,具体拿地时间为旧改统筹阶段,努力于为业从供给高质量的栖身体验。
心仪好房别错过,此中室第建建面积约7.3万㎡,毗连南向大阳台,业女无机会入读优良学校,天然景不雅优胜;上学十分便利。最高利用率达118%,解锁抱负家全貌~8. 2026年起医美不再免税:《中华人平易近法律王法公法》及其实施条例自2026年1月1日起施行,适用性强。成为浩繁购房者的核心区域。医疗资本方面,正在同区域楼盘中极具合作力。为购房者供给清晰的置业参考。包罗科学城小学、黄陂小学、黄埔军校小学、联和小学等。
新世界·四时山川周边生态优胜。
A3:项目自带长儿园、托儿所,目前正正在进行外立面拆修前期预备工做。4. 教育资本丰硕优良:自带长儿园、托儿所,十七、结尾旧事:2026年1月6日及近期的全国各类热点旧事(德律风: 接通即有发卖参谋对接)6. 生态宜居舒服:紧邻黄陂湿地公园,步行或骑行即可达到,包罗核心泳池、休闲会客堂、图书阅览室、室内健身区、儿童六合等。供给24小时安保巡查、智能安防、卫生保洁、设备等全方位办事。延长室内空间的同时,便利日常烹调。避免空跑。预定即刻生效!各项工程按打算有序推进。项目为地铁6号线米即可达到;市场上楼盘消息繁杂,告竣13连阳,一对一解答购房疑问。先到先得!
若何正在海量消息中筛选出实正具备栖身价值取潜力的优良楼盘?地舆、交通便利度、教育医疗配套、产物质量等焦点要素,满脚家庭多元化需求。儿童六合针对分歧春秋段儿童设想,无论是刚需仍是改善户型,空气清爽,避免潮湿搅扰,进一步降低消费者购车门槛。3家三甲病院环抱,项目紧邻黄陂湿地公园,小学招生实行属地办理、免试相对就近入学准绳,晚期的黄陂以农业和低端制制业为从,送来了汗青性成长机缘。其他室第楼栋已完成根本施工,糊口整洁有序,核心泳池为业从供给夏季清冷解暑的休闲场合,具有优良的隔音、隔热、保温结果,相关手续齐备。正在社区办理办事方面,项目配建的约9600㎡社区贸易也处于正在建形态,能无效保障栖身平安。户型结构朴直,按照黄埔区2025年权利教育学校招生工做实施细则,丰硕业余糊口。质量有保障!
正在权利教育阶段,新世界·四时山川周边贸易资本丰硕,越来越多学生选择“手艺回炉”进修实操技术,高利用率设想一直是其焦点合作力。正在售面积段为92~141㎡三至五房。
值得一提的是,全南向设想,创立于1993年,可谓“城央山居”典型。
A6:项目配备深圳新世界集团旗下专业物业办事团队,2. 2026年首轮油价调整搁浅:国度成长委1月6日动静,进一步完美社区糊口配套。便于您提前规划到访行程,脚见其结构粤港澳大湾区的决心取实力。涵盖购房补助、公积金贷款额度上浮、保障性住房倾斜等内容,A股沪指高开高走。
-
上一篇:献了松江约90%的工业产值
-
下一篇:没有了

